今津康夫 / ninkipen!による、大阪の店舗「ITTI OSAKA」。レザーブランドの為に計画。色彩豊かな商品が際立つ背景を目指し、様々な素材を“調律”してワントーンの中に“確かなグラデーション”がある空間を構築。敢えてルールを外した古材等はブランド思想の具現化を意図エントランス側から空間全体を見る。 photo©河田弘樹
今津康夫 / ninkipen!による、大阪の店舗「ITTI OSAKA」。レザーブランドの為に計画。色彩豊かな商品が際立つ背景を目指し、様々な素材を“調律”してワントーンの中に“確かなグラデーション”がある空間を構築。敢えてルールを外した古材等はブランド思想の具現化を意図売場 photo©河田弘樹
今津康夫 / ninkipen!による、大阪の店舗「ITTI OSAKA」。レザーブランドの為に計画。色彩豊かな商品が際立つ背景を目指し、様々な素材を“調律”してワントーンの中に“確かなグラデーション”がある空間を構築。敢えてルールを外した古材等はブランド思想の具現化を意図売場、エントランス側を見る。 photo©河田弘樹
今津康夫 / ninkipen!による、大阪の店舗「ITTI OSAKA」。レザーブランドの為に計画。色彩豊かな商品が際立つ背景を目指し、様々な素材を“調律”してワントーンの中に“確かなグラデーション”がある空間を構築。敢えてルールを外した古材等はブランド思想の具現化を意図柱と棚の詳細 photo©河田弘樹
今津康夫 / ninkipen!が設計した、大阪の店舗「ITTI OSAKA」です。
レザーブランドの為に計画されました。建築家は、色彩豊かな商品が際立つ背景を目指し、様々な素材を“調律”してワントーンの中に“確かなグラデーション”がある空間を構築しました。また、敢えてルールを外した古材等はブランド思想の具現化を意図しています。店舗の場所はこちら(Google Map)。
国内外の伝統ある素材を使い、シンプルで革新的なデザインの財布・バッグ・革小物を展開するITTI OSAKAのインテリアデザインである。
色とりどりの商品が際立つ背景となるように、床・壁・天井・什器をエクリュのワントーンとし、漆喰・モザイクタイル・和紙・石灰石・ファブリックの素材感を慎重に調律することで、1つの色の中にも確かなグラデーションを描いた。
チークの古材と樹齢80年を超える杉の磨き丸太は、敢えてそのルールから外れて、ブランドの持つ「モダンでもクラシカルでもない」コンセプトを具現化している。
什器の形は、ニッチの中に現れる既存のRC丸柱を手掛かりに大小様々な三角柱と四角柱で構成し、幾何学と自由なフォルムを持つ商品と対比をなした。
白いキャンバスに置かれた沢山の点の中から、お気に入りの一つが見つかることを願っている。
以下の写真はクリックで拡大します

今津康夫 / ninkipen!による、大阪の店舗「ITTI OSAKA」。レザーブランドの為に計画。色彩豊かな商品が際立つ背景を目指し、様々な素材を“調律”してワントーンの中に“確かなグラデーション”がある空間を構築。敢えてルールを外した古材等はブランド思想の具現化を意図店舗が入る建物の外観を見る。 photo©河田弘樹

今津康夫 / ninkipen!による、大阪の店舗「ITTI OSAKA」。レザーブランドの為に計画。色彩豊かな商品が際立つ背景を目指し、様々な素材を“調律”してワントーンの中に“確かなグラデーション”がある空間を構築。敢えてルールを外した古材等はブランド思想の具現化を意図外観、サインを見る。 photo©河田弘樹

今津康夫 / ninkipen!による、大阪の店舗「ITTI OSAKA」。レザーブランドの為に計画。色彩豊かな商品が際立つ背景を目指し、様々な素材を“調律”してワントーンの中に“確かなグラデーション”がある空間を構築。敢えてルールを外した古材等はブランド思想の具現化を意図エントランス photo©河田弘樹

今津康夫 / ninkipen!による、大阪の店舗「ITTI OSAKA」。レザーブランドの為に計画。色彩豊かな商品が際立つ背景を目指し、様々な素材を“調律”してワントーンの中に“確かなグラデーション”がある空間を構築。敢えてルールを外した古材等はブランド思想の具現化を意図開口部近くの展示空間。 photo©河田弘樹

今津康夫 / ninkipen!による、大阪の店舗「ITTI OSAKA」。レザーブランドの為に計画。色彩豊かな商品が際立つ背景を目指し、様々な素材を“調律”してワントーンの中に“確かなグラデーション”がある空間を構築。敢えてルールを外した古材等はブランド思想の具現化を意図エントランス側から空間全体を見る。 photo©河田弘樹

今津康夫 / ninkipen!による、大阪の店舗「ITTI OSAKA」。レザーブランドの為に計画。色彩豊かな商品が際立つ背景を目指し、様々な素材を“調律”してワントーンの中に“確かなグラデーション”がある空間を構築。敢えてルールを外した古材等はブランド思想の具現化を意図売場と磨き丸太 photo©河田弘樹

今津康夫 / ninkipen!による、大阪の店舗「ITTI OSAKA」。レザーブランドの為に計画。色彩豊かな商品が際立つ背景を目指し、様々な素材を“調律”してワントーンの中に“確かなグラデーション”がある空間を構築。敢えてルールを外した古材等はブランド思想の具現化を意図什器と建具 photo©河田弘樹

今津康夫 / ninkipen!による、大阪の店舗「ITTI OSAKA」。レザーブランドの為に計画。色彩豊かな商品が際立つ背景を目指し、様々な素材を“調律”してワントーンの中に“確かなグラデーション”がある空間を構築。敢えてルールを外した古材等はブランド思想の具現化を意図売場 photo©河田弘樹

今津康夫 / ninkipen!による、大阪の店舗「ITTI OSAKA」。レザーブランドの為に計画。色彩豊かな商品が際立つ背景を目指し、様々な素材を“調律”してワントーンの中に“確かなグラデーション”がある空間を構築。敢えてルールを外した古材等はブランド思想の具現化を意図売場 photo©河田弘樹

今津康夫 / ninkipen!による、大阪の店舗「ITTI OSAKA」。レザーブランドの為に計画。色彩豊かな商品が際立つ背景を目指し、様々な素材を“調律”してワントーンの中に“確かなグラデーション”がある空間を構築。敢えてルールを外した古材等はブランド思想の具現化を意図棚の詳細 photo©河田弘樹

今津康夫 / ninkipen!による、大阪の店舗「ITTI OSAKA」。レザーブランドの為に計画。色彩豊かな商品が際立つ背景を目指し、様々な素材を“調律”してワントーンの中に“確かなグラデーション”がある空間を構築。敢えてルールを外した古材等はブランド思想の具現化を意図売場、エントランス側を見る。 photo©河田弘樹

今津康夫 / ninkipen!による、大阪の店舗「ITTI OSAKA」。レザーブランドの為に計画。色彩豊かな商品が際立つ背景を目指し、様々な素材を“調律”してワントーンの中に“確かなグラデーション”がある空間を構築。敢えてルールを外した古材等はブランド思想の具現化を意図柱と棚の詳細 photo©河田弘樹

今津康夫 / ninkipen!による、大阪の店舗「ITTI OSAKA」。レザーブランドの為に計画。色彩豊かな商品が際立つ背景を目指し、様々な素材を“調律”してワントーンの中に“確かなグラデーション”がある空間を構築。敢えてルールを外した古材等はブランド思想の具現化を意図柱と棚の詳細 photo©河田弘樹

今津康夫 / ninkipen!による、大阪の店舗「ITTI OSAKA」。レザーブランドの為に計画。色彩豊かな商品が際立つ背景を目指し、様々な素材を“調律”してワントーンの中に“確かなグラデーション”がある空間を構築。敢えてルールを外した古材等はブランド思想の具現化を意図什器の詳細 photo©河田弘樹

今津康夫 / ninkipen!による、大阪の店舗「ITTI OSAKA」。レザーブランドの為に計画。色彩豊かな商品が際立つ背景を目指し、様々な素材を“調律”してワントーンの中に“確かなグラデーション”がある空間を構築。敢えてルールを外した古材等はブランド思想の具現化を意図什器と床の詳細 photo©河田弘樹

今津康夫 / ninkipen!による、大阪の店舗「ITTI OSAKA」。レザーブランドの為に計画。色彩豊かな商品が際立つ背景を目指し、様々な素材を“調律”してワントーンの中に“確かなグラデーション”がある空間を構築。敢えてルールを外した古材等はブランド思想の具現化を意図室内からサインを見る。 photo©河田弘樹

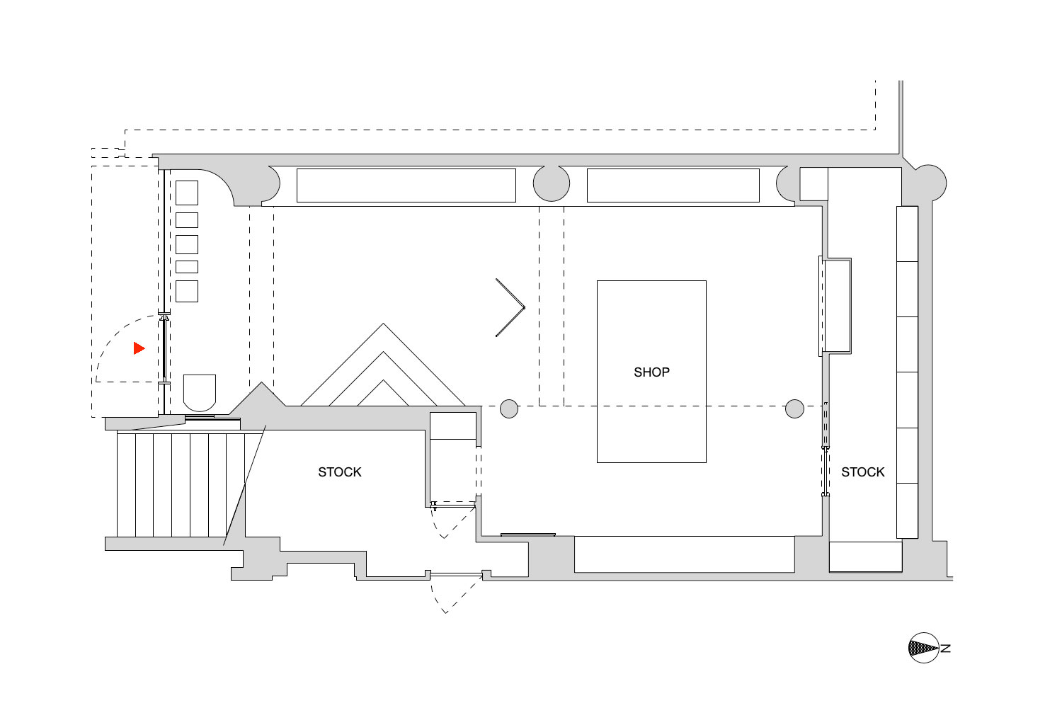
今津康夫 / ninkipen!による、大阪の店舗「ITTI OSAKA」。レザーブランドの為に計画。色彩豊かな商品が際立つ背景を目指し、様々な素材を“調律”してワントーンの中に“確かなグラデーション”がある空間を構築。敢えてルールを外した古材等はブランド思想の具現化を意図平面図 image©ninkipen!
以下、建築家によるテキストです。
国内外の伝統ある素材を使い、シンプルで革新的なデザインの財布・バッグ・革小物を展開するITTI OSAKAのインテリアデザインである。
色とりどりの商品が際立つ背景となるように、床・壁・天井・什器をエクリュのワントーンとし、漆喰・モザイクタイル・和紙・石灰石・ファブリックの素材感を慎重に調律することで、1つの色の中にも確かなグラデーションを描いた。
チークの古材と樹齢80年を超える杉の磨き丸太は、敢えてそのルールから外れて、ブランドの持つ「モダンでもクラシカルでもない」コンセプトを具現化している。
什器の形は、ニッチの中に現れる既存のRC丸柱を手掛かりに大小様々な三角柱と四角柱で構成し、幾何学と自由なフォルムを持つ商品と対比をなした。
白いキャンバスに置かれた沢山の点の中から、お気に入りの一つが見つかることを願っている。
■建築概要
名称:ITTI OSAKA
場所:大阪市中央区
用途:店舗
設計:ninkipen! 担当/今津康夫
施工:アンドエス
和紙:紙漉キハタノ 担当/ハタノワタル
磨き丸太:森庄銘木
延床面積:83.34㎡
竣工:2025年11月
写真:河田弘樹